
Paulo C Barbosa
Alameda Franca, - Jardim Paulista
Corretor responsável
Paulo C Barbosa(11) 97333-6545
Galpão na Lapa de Baixo - Área construida 2.088m² em 1.944m² de terreno.
,
Venda: R$ 15.000.000,00
Locação: R$ 75.000,00
IPTU: R$ 11.040,37
Código: PD11993



4
Vagas10 ou mais
AndarTérreo
Área útil200289,m²
VendaR$ 15.000.000,00
LocaçãoR$ 75.000,00
IPTUR$ 11.040,37
Galpão comercial na região da Lapa, em São Paulo, com cerca de dois mil metros quadrados de área construída, em localização que favorece operações logísticas e atividades que dependem de mobilidade. A proximidade com a Marginal Tietê facilita o deslocamento para diferentes pontos da cidade e região metropolitana.
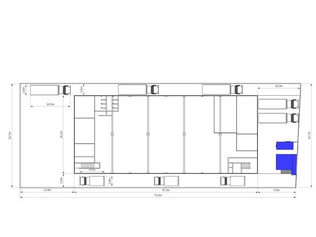
O imóvel está em via ampla, o que contribui para a circulação e manobra de caminhões e veículos de grande porte. A frente, com 27 metros, garante boa visibilidade e presença para empresas que valorizam exposição.
Conta com portaria com guarita, oferecendo mais controle de acesso. Na área externa, há recuo frontal com espaço para estacionamento, além de corredores laterais que permitem a passagem de veículos e uma área nos fundos que amplia as possibilidades de uso no dia a dia da operação.
A estrutura inclui cabine primária de energia, adequada para demandas industriais, elevador de carga, além de áreas de apoio como vestiário e refeitório. Nos fundos, há espaço adicional para estacionamento ou apoio logístico.
O galpão é distribuído em dois pavimentos com vão livre e pé-direito de 3,45 metros, permitindo adaptar o layout conforme a necessidade da empresa.
Uma opção interessante para quem busca um imóvel funcional, com boa logística e estrutura pronta para diferentes tipos de operação.
Características do imóvel
Terreno com 1.943,46 m²
Área construída total de 2.002,89 m²
Dois pavimentos independentes
Aproximadamente 940 m² de área útil por pavimento
Frente com 27,03 metros
Fundo com 27,00 metros
Comprimento do terreno com 72,65 m e 71,31 m
Construção com 47,00 m x 20,00 m
Pé-direito de 3,45 m
Corredores laterais amplos
Recuo frontal e nos fundos de 13,00 m
Diferenciais
Acesso para caminhões de médio e grande porte pelos dois lados do imóvel
Estrutura preparada para instalação de cabine primária e gerador
Documentação técnica disponível
Localização e logística
Localizado próximo à Marginal Tietê, com acesso facilitado às rodovias Castelo Branco, Anhanguera e Bandeirantes, o imóvel permite deslocamento rápido para diferentes regiões da capital e Grande São Paulo.
Uma escolha interessante para empresas que dependem de agilidade no transporte e distribuição.
Perfil de uso
Logística e distribuição
Armazenagem
Indústria leve
Atacado
Centros operacionais
Imóvel com histórico de ocupação por empresa do segmento industrial/logístico, reforçando sua adequação para esse tipo de operação.