
Paulo C Barbosa
Alameda Franca, - Jardim Paulista
Corretor responsável
Paulo C Barbosa(11) 97333-6545
Conjunto comercial em Pinheiros - 339m² - 10 Vagas
Locação: R$ 35.626,50
Condomínio: R$ 7.362,81
IPTU: R$ 4.634,83
Código: PP11798



5
Banheiros4
Vagas cobertas10 ou mais
Andar9º
Área útil339,30m²
Área total339,30 m²
LocaçãoR$ 35.626,50
CondomínioR$ 7.362,81
IPTUR$ 4.634,83
Conjunto comercial com acesso direto ao Metrô e trem – Pinheiros
Se você busca um espaço corporativo moderno, funcional e com localização estratégica, essa é uma excelente oportunidade. Este conjunto está em um dos edifícios mais icônicos da região de Pinheiros, com retrofit assinado pelo escritório Perkins & Will, referência em projetos corporativos.
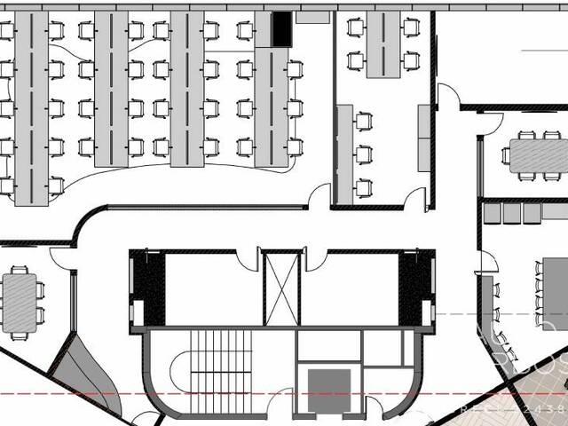
Com 339m², o espaço já conta com 5 salas, copa, piso elevado, ar-condicionado central e 10 vagas de garagem, além de estacionamento para visitantes.
A planta é versátil e permite adequações conforme as necessidades da sua empresa.
Localização não poderia ser melhor: acesso direto às estações Pinheiros da CPTM e do Metrô, ao lado da Marginal Pinheiros e a poucos minutos da Av. Faria Lima. Tudo isso cercado por uma excelente estrutura de serviços e mobilidade.
O edifício oferece:
- Cabeamento em fibra ótica
- Sistema de ar-condicionado VRF
- Gerador para 100% do prédio
- Certificação ambiental LEED Gold
- Controle eletrônico de acesso
- Auditório com capacidade para até 50 pessoas
- Bicicletário
- Café no térreo com unidade da Casa Bauducco
- Estacionamento para visitantes
Uma solução completa para empresas que priorizam praticidade, tecnologia e visibilidade em um dos eixos corporativos mais valorizados da cidade.
Se quiser mais informações ou agendar uma visita, é só me chamar.
Estágio1